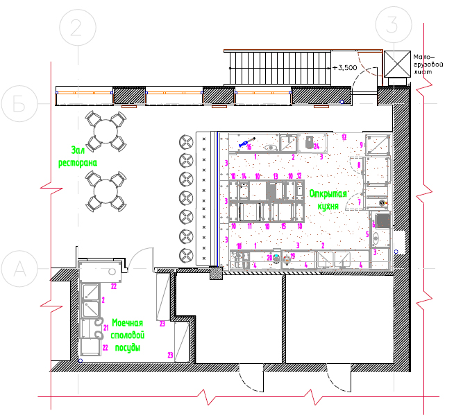
Вынесение кухни ресторанов и кафе на всеобщее обозрение является сейчас заметной тенденцией работы ресторанов. Открытая кухня в ресторанах дает возможность гостю получить удовольствие от посещения ресторана, начиная от зрительных и заканчивая вкусовыми ощущениями. На открытой кухне должно быть уставлено современное высокоэффективное технологическое оборудование – тепловое, холодильное, нейтральное. На данной расстановке обозначена кухня, которая находится в отдельном помещении, а не непосредственно в зале. Посетители могут понаблюдать за процессом приготовления заказанного ими блюда рядом с кухней – для этого выделена специальная зона, — а могут разместиться за столиками в зале. ОПИСАНИЕ ПРОЕКТАЦентр помещения: тепловой остров; комбинированная жарочная поверхность; индукционная плита и др. тепловое оборудование. Пристенная линия: пароконвекционная печь; аппарат шокового охлаждения. Места хранения: холодильный стол для того, чтобы все необходимые ингредиенты были под рукой. Электромеханическое оборудование: слайсер; погружной блендер-миксер; соковыжималки для овощей и фруктов. Система вентиляции: приточно-вытяжной потолок, наиболее активно работающий на границе кухни и зала. ВАЖНО ЗНАТЬ чтобы запахи из кухни не доносились до гостей, при проектировании открытой кухни необходимо особое внимание уделить вытяжке и системе вентиляции; полки, столы, стеллажи, на которых хранится инвентарь и посуда, не должны бросаться в глаза; закрытые полки с дверцами — делают облик кухни более эстетичным в глазах посетителей. В запросе на просчет стоимости проекта и оснащения открытой кухни ресторана или кафе изложите все исходные данные, требования и пожелания. Специалисты ПРОФЭКВИП сконфигурируют персональное предложение, отвечающее вашим требованиям и заявленному бюджету. Получите индивидуальные рекомендации профессионалов комплексного оснащения объектов питания прямо сейчас! Рассчитать проект +7 (499) 302-37-62 или позвоните нам по телефону, мы всегда на связи Для заполнения данной формы включите JavaScript в браузере.Для заполнения данной формы включите JavaScript в браузере.Имя *Эл. почтаТелефон * Имя Телефон Комментарий Комментарий *- обязательные поля Нажимая на кнопку вы соглашаетесь с политикой обработки персональных данных Рассчитать Рассчитать Навигация по записямПредыдущаяПредыдущая запись:Фаст-фудСледующаяСледующая запись:Кухня в гостиницеПохожие статьиИндустриальная прачечная с туннельной линией26.02.2019Коммерческая прачечная22.02.2017Барная стойка13.02.2017Кухня на заправочной станции (АЗС)13.02.2017Кухня в гостинице13.02.2017Фаст-фуд13.02.2017