Сектор HoReCa является одним из самых быстрорастущих. Тенденции развития объектов общественного питания во многих случаях сконцентрированы на «фаст-фуд» индустрии. Обычно, площадь под кухню выделяют небольшую, на ней нужно разместить максимально производительное и необходимое по назначению технологическое оборудование.
ОПИСАНИЕ ПРОЕКТА
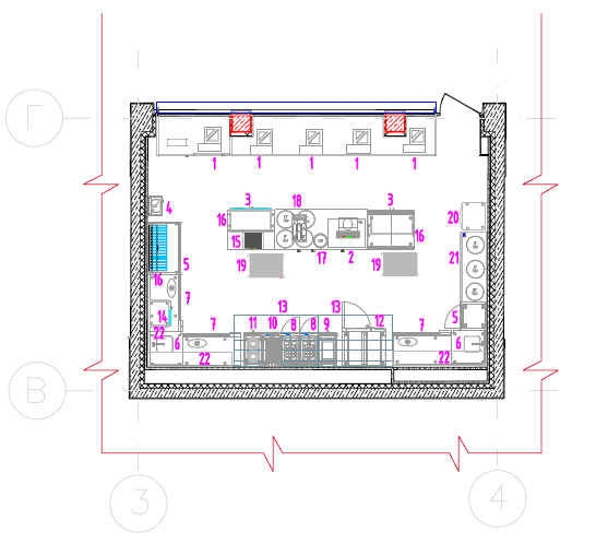
Пристенная линия:
- тепловая линия с двухконфорочной плитой, гладкой жарочной поверхностью, грилем для барбекю;
- пароконвекционная печь;
- микроволновая печь;
- роликовый гриль;
- холодильные столы по периметру.
Центральная часть:
- оборудование для передачи готовой продукции (тепловые полки, холодильные витрины);
- система розлива для пива (устанавливается специализированной пивной компанией);
- кофемашина суперавтомат.
Во фронтальной линии происходит выдача заказов посетителям и их оплата.
ВАЖНО ЗНАТЬ
- Четко сформируйте понимание концепции будущего заведения;
- Определите перечень блюд, которые планируете предлагать посетителям фаст-фуда;
- в фаст-фудах широко используются полуфабрикаты с разной степенью готовности, пароконвектомат на кухне выполняет важную роль и является многофункциональным (регенерация, доготовка, разогрев и т.д.);
- для хранения и удобного доступа к ингредиентам блюд часто используют холодильные столы: их применение дает дополнительные преимущества – больше рабочих поверхностей и холодильного объема;
В запросе на просчет стоимости проекта и оснащения заведения фаст-фуда изложите все исходные данные, требования и пожелания. Специалисты ПРОФЭКВИП сконфигурируют персональное предложение, отвечающее вашим требованиям и заявленному бюджету.
Получите индивидуальные рекомендации профессионалов комплексного оснащения объектов питания прямо сейчас!
+7 (499) 302-37-62 или позвоните нам по телефону,мы всегда на связи










