Индустриальная прачечная с туннельной линией
30.04.2026
Предлагаем Вам открыть аквачистку — современную экологическую альтернативу химчистки. В последнее время все больше внимания уделяется экологичности и безопасности предприятий, в том числе и таких как химчистка-прачечная. Люди также стали больше заботиться об отсутствии вредных веществ в повседневной жизни.
Научный прогресс в области производства моющих средств дошел до уровня, когда стало возможным производство экологически чистых биоразлагаемых препаратов для аквачистки, которые при этом обладают высокой моющей способностью. Более того – такие препараты защищают натуральные деликатные волокна такие как шерсть и шелк от усадки и деформации.
Такие моющие средства и специальное оборудование аквачистки позволяют успешно обрабатывать в воде изделия, для которых разрешена только химическая чистка. Поэтому аквачистка постепенно вытесняет химическую чистку и появляется все больше предприятий аквачистки.
Основные преимущества аквачистки:
ПРОФЭКВИП предоставляет все виды консультационных услуг по расчету предприятия аквачистки, подбору оборудования, его поставке, вводу в эксплуатацию и дальнейшему гарантийному и послегарантийному обслуживанию.
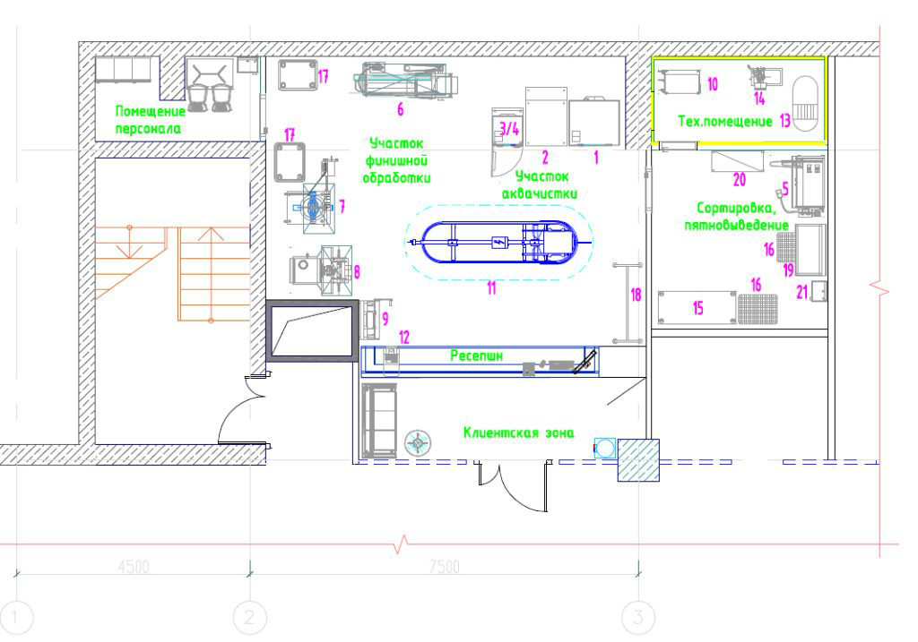
Предлагаем Вам ознакомиться с проектом аквачистки, выполненным специалистами нашего Проектного отдела.

Организация предприятия аквачистки требует проведения ряда расчетов с целью определения необходимой мощности оборудования, площади помещения и потребности в энергоносителях.


Для реализации данного проектного решения подобран комплект оборудования ведущих европейских производителей, с которым Вы можете более подробно ознакомиться ниже:
СПЕЦИФИКАЦИЯ ОБОРУДОВАНИЯ | ||
|---|---|---|
№ | Наименование | Количество |
| 1 | Стиральная машина, W4180H Lagoon | 1 |
| 2 | Сушильный барабан, Т5350 Lagoon | 1 |
| 3 | Стиральная машина, W555H | 1 |
| 4 | Сушильный барабан, Т5130 | 1 |
| 5 | Пятновыводная кабина, FSU-4 | 1 |
| 6 | Гладильный стол, FIT1-WC | 1 |
| 7 | Пароманекен, FFT-WC | 1 |
| 8 | Брючный пароманекен, FTT1 | 1 |
| 9 | Упаковочная машина, HP 630 KW | 1 |
| 10 | Парогенератор, FSB24 | 1 |
| 11 | Конвейер (540 единиц), 1-shape | 1 |
| 12 | Маркировочная машина, Y-151 | 2 |
| 13 | Компрессор, 90/490-ЗМ | 1 |
| 14 | Станция водоподготовки | 1 |
| 15 | Стол передвижной, MTR1(F) | 1 |
| 16 | Тележка для грязного белья, КТ1 | 2 |
| 17 | Тележка для чистого белья, AL1 | 2 |
| 18 | Передвижное вешало, G1 | 1 |
| 19 | Стол, СПП | 1 |
| 20 | Стеллаж, 4 полки, СТ | 1 |
| 21 | Рукомойник, LVM-400 | 1 |

Или позвоните нам по телефону, мы всегда на связи!